Light Connection
Light Connection
The Light Connection House, North Carlton 2011
The Light Connection House reimagines the inner-urban terrace for contemporary family life. Nestled within a tight Victorian streetscape, this project responds to the spatial needs of a growing family while embracing the opportunity to open the home to light, air, and movement.
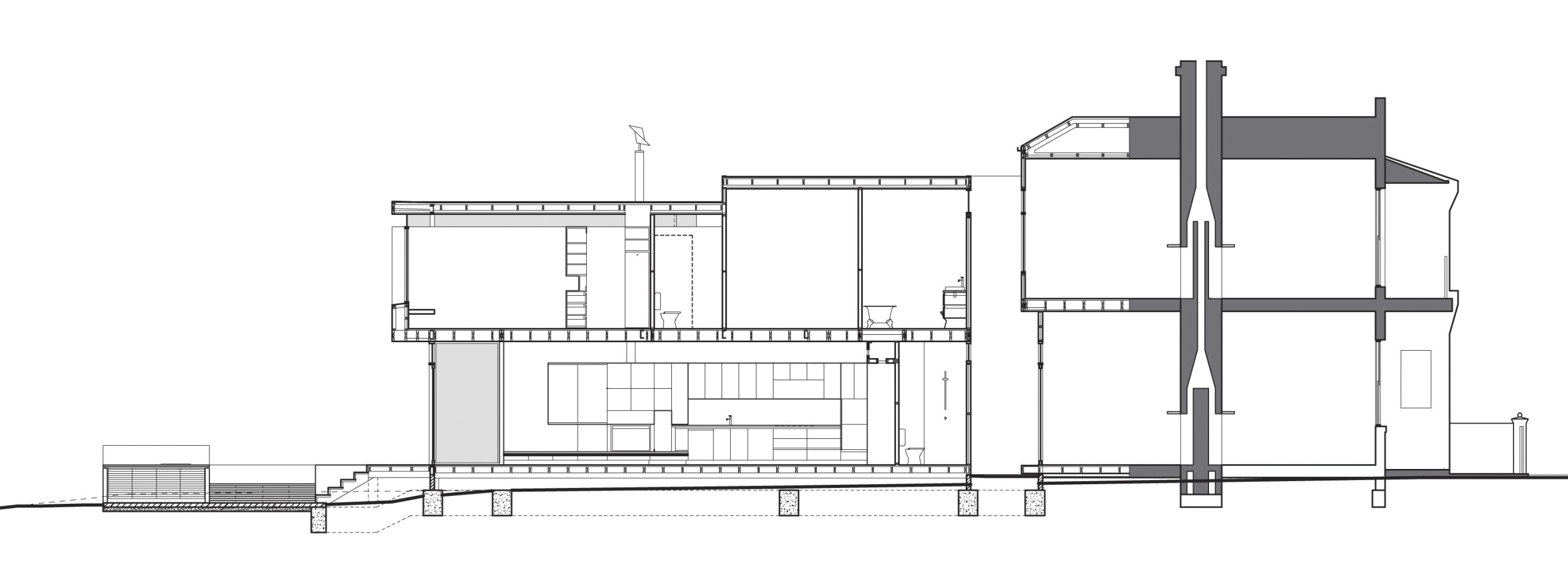
With the existing footprint no longer sufficient, a substantial two-storey addition was designed to the rear, drawing from — rather than imitating — the existing architecture. The new work integrates seamlessly into the old, linked by a central courtyard garden that becomes the spatial and atmospheric heart of the home.
This internal courtyard is key to the home’s transformation. Open to the sky and lined in reclaimed brickwork, it allows light to filter deep into the adjoining rooms across both levels. The upper floor has been carefully lifted and detached from the northern party wall, creating a slender skylight that tracks light across the ceiling plane throughout the day.



An additional south-facing skylight is introduced above the Living area, ensuring balanced daylighting in spaces that would otherwise feel enclosed. A playful and expressive use of the existing ‘Royal Blue’ glass motif threads through the addition — expanded in clerestory glazing and in an east-facing window at the edge of a dramatic two-storey void connecting the Master Bedroom to the Living space below. As sunlight shifts, these panes cast soft washes of blue across the internal surfaces, animating the home with moments of unexpected colour and atmosphere.
Material continuity also serves to unify old and new. The original burnt red-brown masonry walls — previously exposed in the interior — were carefully demolished at the rear and reconstituted in the courtyard walls and the rear terrace paving. These elements offer a quiet echo of the home’s history, while anchoring the new architecture in familiar textures and tones.


The Light Connection House demonstrates how strategic insertions can transform a traditional terrace — not by expanding indiscriminately, but by carving space for light, memory, and connection within the dense urban grain.










